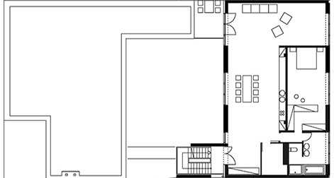
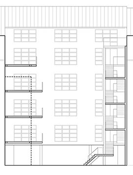
Das vorhandene Hinterhaus der Baulücke ist als Galerie, Atelier und Kunstdruckerei genutzt. Mit dem Neubau wird das Ensemble um Ateliers und  Loftwohnen ergänzt. Der Hof bleibt als Durchgang zur Straße offen und bildet einen unterschiedlich nutzbaren, halböffentlichen Bereich. Die Bautiefe musste aufgrund der Hinterhausbebauung wesentlich geringer als die der Nachbarbebauung bleiben. Eine außenliegende Treppenskulptur schafft Raum im Gebäudeinneren. Realisiert sind drei 140qm Lofts und eine Dachwohnung (220qm) mit Galeriegeschoss und zwei Terrassen.

Bauherr: Rheinkontor, Köln

LOFTWOHNEN

KÖLN

Loftwohnen

Konzept.

Entwurf.

Lph. 1-4

 

2006

 

dung/radmacher

 

PROJEKTE

INFO

VERLAG //

architekturatlas

bildungswerkstatt

blumenladen

c/o pop

economic impact

esa award

fep

green

hmi schaefflergroup

kita+gemeindehaus

loftwohnen

löwenplatzcafé

mosaik

naumannsiedlung

opels werkstatt

printmedialounge

raum der stille

replaced

saftladen

station kinderklinik

strategien zur inklusion

shelf

stapel

workstation